(418) 725-0515
(418) 725-0515
Retour
174, rue Ste-Anne
LOGEMENT 1
SOUS-SOL
LOGEMENT 2
REZ-DE-CHAUSSÉE
LOGEMENT 3
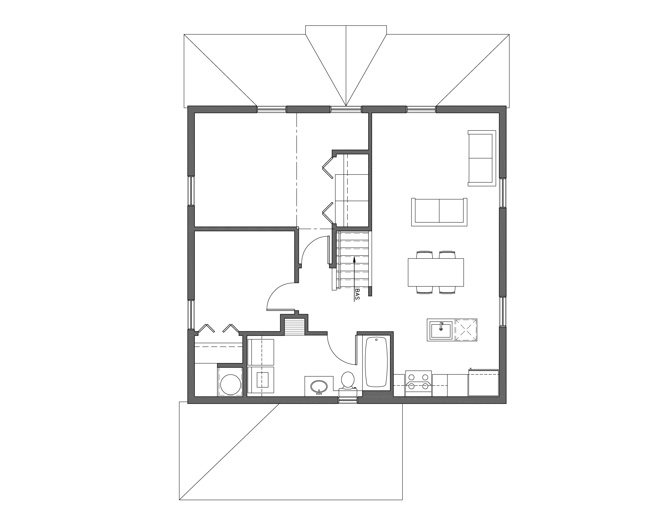
ÉTAGE
Retour