(418) 725-0515
(418) 725-0515
Retour
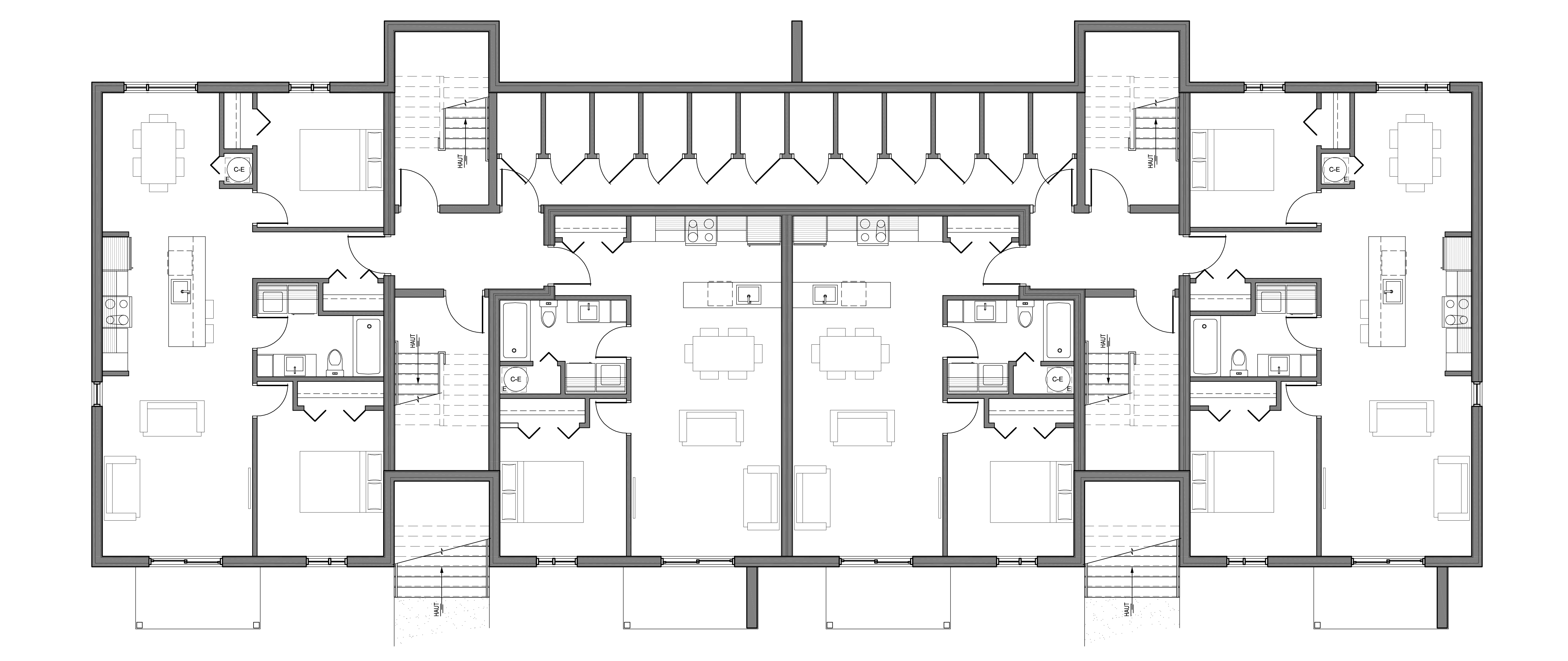
12 Logements Sacré-Coeur
PLAN DU NIVEAU 1
PLAN DU NIVEAU 2
PLAN DU NIVEAU 3
Retour